Kuru projekt
Liiv, päike, järv… unustage see. Me pakkume Teile krunte Peipsi järve ääres mitte ainult selleks. Meile näib, et kui Te otsustasite soetada maad või maja järve ääres, loodate näha ülalnimetatut.
Liiv, päike, järv… unustage see. Me pakkume Teile krunte Peipsi järve ääres mitte ainult selleks. Meile näib, et kui Te otsustasite soetada maad või maja järve ääres, loodate näha ülalnimetatut. Me räägime Teile rohkem Peipsi järvest ja konkreetselt Kuru külast. Kuru küla asub Peipsi järve põhjarannikul laia liivaranna vahetus läheduses. See koht ja tema ümbruskond on üks populaarsemaid Ida-Virumaal ja ülejäänud Eestis.Paljude aastate kogemus on põhjendatud- kuiv, päikeseline koht väljapääsuga järvele läbi liivaluite, hõre hoolitsetud männimets. Peale välisfaktorite köidab see koht ka tunnete tasandil oma avatuse ja puhtusega. Paljud on tähele pannud, et siin on ilm tihtipeale isegi parem kui teistes maakonna linnades.
Võib kindlalt öelda, et teist sellist kohta leida on raske.
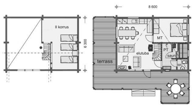
See koht sobib kõige paremini suvila ehitamiseks aastaringseks elamiseks.
Ruutmeetri hind on alates 210 EEK. Eelneva lepingu sõlmimisel on hind 10% krundi maksumusest.
Kui Te olete huvitatud ja jätkate lugemist, siis me tahaksime jagada Teiega informatsiooni, mis on tähtis meile, kuid tihti ei tule pähe Teile.
Vastavalt hiljuti kehtestatud Iiskaku valla üldplaneeringule on territoorium, mille keskel asub meie maa-ala, määratud ehitushoonestuseks. Sellega kaasnevad kindlad nõudmised hoonestajatele, mis garanteerib Teile tulevikus mugava elukeskkonna. Sellel territooriumil on plaanis ehitada üldkasutatavaid kohti, rekreatsiooniteenuseid ja toitlustuskohti. On plaanis rajada tsentraliseeritud võrk (vesi, kanalisatsioon) reaalse tähtajaga 5-10 aastat. Kokkuvõttes on siin olemas või luuakse siia kõik tingimused täisväärtuslikuks puhkuseks.
Samuti on meile tähtis ka see, et vald jälgib iga projekti esteetikat. Me kasutame naturaalseid materjale ja värve. Majad ehitatakse kooskõlas stiili nõudmistega kuni selliste peensusteni välja nagu aed, mis ehitatakse külastiilis fikseeritud nurga all 45-60´puitelementidest. Sellega me püüame vältida Peipsi rannikul levinud kirevust ja maitsetust.
Kuru küla piirkond on kuivem, kui enamik kohti rannikul. Kuiv keskkond teeb puhkuse meeldivamaks ning lendavaid putukaid on tunduvalt vähem. Meie krundid asuvad tasasel päikeselisel põllul noorte mändidega, mis loob avaruse ja vabaduse tunde.
Projekt on realiseeritud 2007-2011 aastatel.